Zu vermieten: Lichtdurchflutete und moderne Bürofläche mit schönem Weitblick und Klimakomfort

Ref. Nr. 805_2

Details zur Immobilie

  1. Ort
    9491, Ruggell, Liechtenstein
  2. Baujahr
    2015
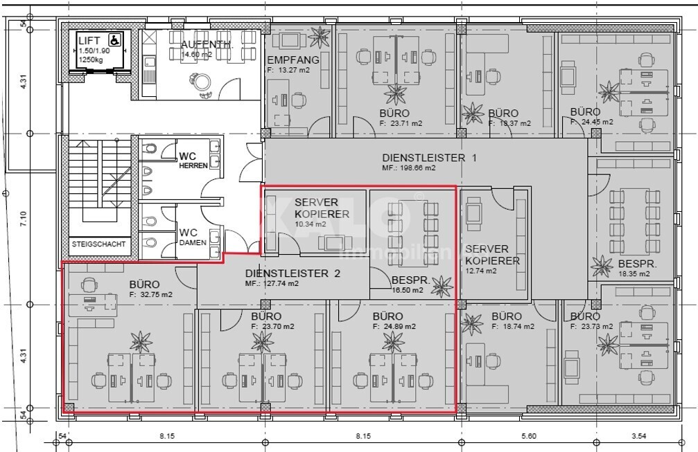
  3. Bürofläche
    128 m²
Miete exkl. NK CHF 1'800.-
Nebenkosten CHF 170.-
Miete inkl. NK CHF 1'970.-

Ausstattung/Besonderheiten

* Vielseitig nutzbare Bürofläche
* Separate Büro-/Besprechungsräume
* Klimatisierter Serverraum vorhanden
* Aufenthaltsraum mit Teeküche vorhanden
* Toiletten zur Mitbenutzung auf der Etage vorhanden
* Doppelboden mit Teppichbelag
* EDV-Verkabelung vorhanden
* Im 2. Obergeschoss mit grossen Personenlift
* Heizen und Kühlen mittels Bauteilaktivierung der Decken
* Komfortlüftung in allen Räumlichkeiten
* Sonnenschutz rundum über elektrische Lamellenstoren
* Duschmöglichkeiten im Untergeschoss
* Überdachter Balkon
* Minergie P-Standard
* Bushaltestelle 50m entfernt

* Allgemeine Besucherparkplätze stehen zur Verfügung
* Tiefgaragenparkplätze à CHF 60.-/Monat verfügbar
* Aussenparkplätze à CHF 40.-/Monat verfügbar
* E-Ladestation vorhanden

* Verfügbar ab 1. Januar 2026 oder nach Vereinbarung

Objektbeschreibung

Bei dieser Liegenschaft werden die Mehrwertsteuer zusätzlich zum Mietpreis geltend gemacht (aktuell 8.1%).

Lage

Ruggell, die nördlichste Gemeinde Liechtensteins, liegt am Dreiländereck zu Schweiz und Österreich. Das flache Gebiet westlich von Eschner- und Schellenberg macht die rund 2000-Einwohner-Gemeinde zum „Fahrraddorf“. Renaturierte Gebiete wie Bangserfeld und Bangserwesa laden zu Spaziergängen und Fahrradtouren ein, während das Sumpfgebiet Ruggeller Riet eine erstaunliche Vielfalt an Flora und Fauna bietet.

Der starke „Dörfligeist“ zeigt sich im lebendigen Vereinsleben, das auch über die Grenzen hinaus beliebt ist. Ruggell grenzt im Norden an Bangs und Nofels (Österreich), im Westen an Sennwald und Salez (Schweiz) sowie im Süden und Osten an Gamprin-Bendern und Schellenberg.

Ihr Ansprechpartner

Herr Anel Ferati
Immobilienberater
AXALO Immobilien AG T: +423 388 29 54 M: +41 78 749 50 58

Ich habe die Datenschutzhinweise gelesen und akzeptiere sie.

Für die Vereinbarung von Besichtigungsterminen bitten wir Sie höflich, sich entweder per E-Mail oder telefonisch mit uns in Verbindung zu setzen.