neu

Zu vermieten: All-Inclusive-Doppelbüro: Voll möbliert, Parkplatz, Kaffee & Sitzungszimmer inklusive

Ref. Nr. 741

Details zur Immobilie

  1. Ort
    9494, Schaan, Liechtenstein
  2. Baujahr
    2016
  3. Bürofläche
    20 m²
Miete inkl. NK CHF 1'200.-

Ausstattung/Besonderheiten

* Möblierte Doppelbüros mit ca. 20 m2 und 2 vollausgestatteten Arbeitsplätzen
* Im 1. Obergeschoss mit Personenlift
* Repräsentativer Eingangsbereich mit Wartebereich und Sofas
* Vorhandene IT-Infrastruktur mit Glasfaseranschluss
* Briefkasten sowie Post-Service inklusive
* Nutzung eines gemeinsamen Sitzungszimmer inklusive
* Nutzung der Teeküche inklusive Kaffee und Wasser
* Sanitäre Anlagen mit Dusche vorhanden
* Alle anfallenden Nebenkosten sind inklusive
* Regelmässige Reinigung des Büros ist inklusive
* Je 1 Aussenparkplatz ist im Mietzins inbegriffen

* Verfügbar ab sofort oder nach Vereinbarung

Miet-Einheiten

Immo-Nummer
Geschoss
Zimmer
Fläche
Preis
Status

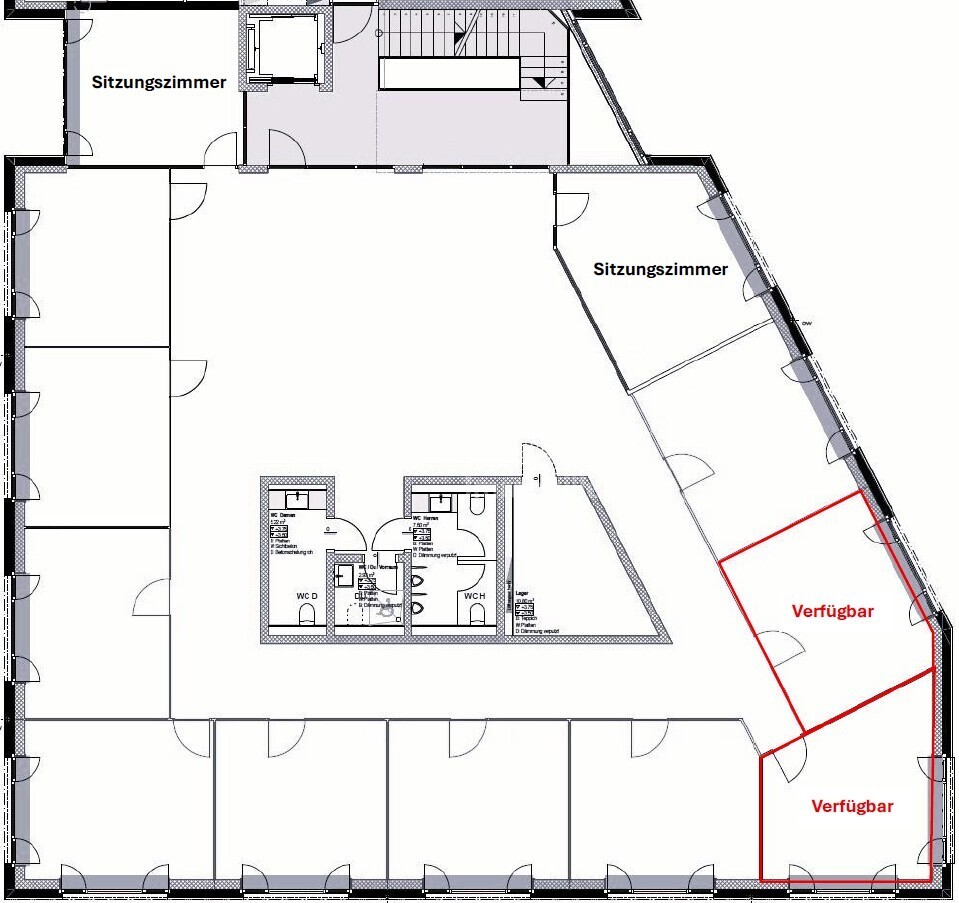
Immo-Nummer: 741_1
Geschoss: 1
Zimmer: -
Gewerbefläche: 20 m²
Miete inkl. NK: CHF 1'200.-
Status: Verfügbar

Immo-Nummer: 741_2
Geschoss: 1
Zimmer: -
Gewerbefläche: 20 m²
Miete inkl. NK: CHF 1'200.-
Status: Verfügbar

Objektbeschreibung

An zentraler Lage in Schaan bieten wir Ihnen vollständig möblierte Doppelbüros zur Miete an, jedes mit etwa 20 m² und zwei Arbeitsplätzen. Neben einem grosszügigen und stilvollen Eingangsbereich mit Sofa erwartet Sie eine gut ausgestattete Infrastruktur: Die Büros sind mit Glasfaserverkabelung versehen, die eine schnelle Internetverbindung sicherstellt, und ein Briefkasten sowie Post-Service sind ebenso wie die Nutzung des Druckers im Mietpreis enthalten.

Im Mietpreis inbegriffen sind ausserdem die Nutzung eines gut ausgestatteten Sitzungszimmers und einer Kaffeeküche, die neben Kaffee auch Wasser kostenlos bereitstellt. Sanitäre Anlagen mit Dusche stehen ebenfalls zur Verfügung.

Die Nebenkosten sowie regelmässige Reinigung, und ein je ein Aussenparkplatz steht Ihnen ebenfalls zur Verfügung.

Bei dieser Liegenschaft werden die Mehrwertsteuer zusätzlich zum Mietpreis geltend gemacht (aktuell 8.1%).

Lage

Schaan, die nördlichste Gemeinde des Liechtensteiner Oberlandes, liegt zwischen Rhein und der Bergkette Drei Schwestern. Mit rund 6000 Einwohnern ist sie die bevölkerungsreichste Ortschaft des Landes und ein wichtiger Wirtschaftsstandort mit über 8000 Arbeitsplätzen. Dank der Nähe zur Rheintalautobahn ist Schaan ein zentraler Verkehrsknotenpunkt. Die Gemeinde besticht durch gut erschlossene Naherholungsgebiete, Sport-, Kunst- und Kulturangebote sowie ruhige Wohnquartiere. Bildungseinrichtungen wie die Liechtensteinische Sportschule, die Realschule St. Elisabeth und das Schulzentrum Mühleholz mit dem Liechtensteinischen Gymnasium ergänzen das Angebot. Nachbarorte sind Gamprin-Bendern, Eschen-Nendeln, Planken und Vaduz. Einkaufsmeilen und Skigebiete wie Malbun, Flumserberg und Montafon sind schnell erreichbar.

Ihr Ansprechpartner

Herr Oliver Kaufmann
Immobilienvermarkter
AXALO Immobilien AG T: +423 388 29 74 M: +41 78 214 94 15

Ich habe die Datenschutzhinweise gelesen und akzeptiere sie.